CALL US:
07392 307048
Material Processing Project
This has been a rapid response, bespoke system design and manufacture project for a polymer recycling facility. From the purchase order placement through design, manufacture and installation has been just 4 weeks which we were able to accomplish due to our UK-based manufacturing facility.
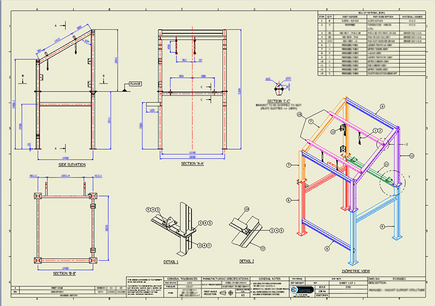
HC Conveyors were asked to design, manufacture, and install a high-angle pocket belt conveyor, Eddy Current Separator, and Magnetic conveyor belt. The system will remove ferrous and aluminium from processed polymer before producing polymer pellets.
Before installation, we were tasked with the decommissioning of an existing conveyor to allow the installation of the new system. The new system includes two large structural steel fabrications, 3 chutes, and a bespoke high-incline conveyor belt.




















